antes y después

Las cinco tendencias deco de 2025 que vamos a copiar de la impresionante reforma de este apartamento de 90m2 en París

Una cocina abierta, colores tendencia muy bien combinados, y un baño con plantas para aprovechar al máximo un piso pequeño.

La increible transformación de un partamento de 90m2 en París. Didier Delmas
Las cinco tendencias deco de 2025 que vamos a copiar de la impresionante reforma de este apartamento de 90m2 en París
Ana Calvo
Ana Calvo

Un apartamento de 90 metros cuadrados en París, al fondo de un patio, en la última planta de un edificio que antes fue un establo. Una planta fragmentada al estilo años 70 en espacios minúsculos y divididos. Diez habitaciones, ocho de ellas distribuidas a lo largo de un pasillo ciego, y un enorme muro de carga que atravesaba todo el ancho del piso. Sin duda, la reforma a la que tenía que enfrentarse el estudio de arquitectura e interiorismo de Thibaut Picard tenía más limitaciones que ventajas.

En palabras del propio arquitecto, «hizo falta mucha imaginación para poder seguir adelante con confianza con la compra de este piso». Pero, viendo el espectacular resultado, podemos asegurar que los seis meses que duró la reforma merecieron mucho la pena.

TAMBIÉN TE INTERESA

Desde el estudio de Thibaut Picard aseguran que «se eliminó todo: no sólo los tabiques, sino también el muro de carga, que se sustituyó por dos vigas UPN de 7 metros de largo, algunas de las cuales aún son visibles en el salón». Además, quitaron los falsos techos para dar más amplitud y encontraron claraboyas que permitiron dotar a la vivienda de una fantástica iluminación.

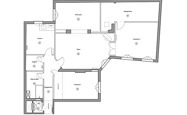
El apartamento en París antes de la reforma, con un espacio compartimentado en diez estancias. cortesía Thibaut Picard
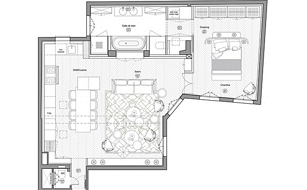
Plano del apartamento después de la reforma, con espacios abiertos. cortesía Thibaut Picard

Fruto de la filosofía holística que siguen en el estudio de Picard, no solo se llevó a cabo una reforma estructural de la vivienda, sino que se encargaron del proyecto de interiorismo de la misma. «Trabajamos en todas las etapas: el diseño, la arquitectura y los interiores, integrando las limitaciones e inspirándonos en el contexto cultural local y comprendiendo la arquitectura de un emplazamiento, las técnicas de construcción y la elección de los materiales para crear una coherencia».

Tendencias deco 2025 que queremos copiar

Como resultado, además de un apartamento mucho más funcional y 'vivible' desde el punto de vista arquitectónico, nos encontramos con un interiorismo que recoge y asimila algunas de las pautas de estilo que marcan las tendencias en decoración actuales y que pasa por fomentar los espacios abiertos, apostar por diseños biofílicos, jugar con los colores de moda sin olvidarse de la atemporalidad y buscar piezas vintage con historia.

Cocina abierta al salón en un espacio amplio de más de 40m2. Didier Delmas

1. Cocina abierta al salón

Las cocinas abiertas vuelven a ser tendencia, si es que alguna vez dejaron de estar a la última. Su funcionalidad versátil es más que bienvenida en este apartamento parisino en el que se consigue ampliar visualmente el espacio (se incorpora, además, un espejo envejecido que lo multiplica) y se conectan así la cocina y el salón comedor en un único ambiente de más de 40 metros cuadrados. Además, el juego cromático blanco y negro y el uso de madera y mármol consigue aportar un punto de elegante sofisticación perfecto.

La paleta cromática utilizada en la reforma. Didier Delmas
Imagen principal - La paleta cromática utilizada en la reforma.
Imagen secundaria 1 - La paleta cromática utilizada en la reforma.
Imagen secundaria 2 - La paleta cromática utilizada en la reforma.

2. Combinación de colores tendencia

A la hora de elegir la paleta cromática utilizada, el estudio de Thibaut Picard apuesta por las tonalidades tierra como base, aportando así calidez a todas las estancias, y añade potentes colores complementarios como el verde musgo, el amarillo mostaza o los terracota para poner notas de acento en muebles protagonistas como el sofá, los grandes textiles e, incluso, las paredes.

Diseño biofílico en el baño. Didier Delmas

3. Baño con plantas

El diseño biofílico busca incorporar elementos naturales a los ambientes construidos. Las plantas se adueñan de los espacios y los transforman, consiguiendo espacios llenos de color y vida. En este caso, esta tendencia se traslada al baño, de estética retro y con un suelo de mosaico impresionante, y lo convierte en un auténtico espacio de bienestar en casa.

Los muebles de obra vuelven a ser tendencia. Didier Delmas

4. La vuelta de los muebles de obra

Como ya vimos en nuestra revisión de tendencias de 2025, las molduras y los muebles de obra vuelven a estar a la última. Soluciones perfectas para conseguir almacenaje extra sin quitar mucho espacio y un elemento ornamental funcional y duradero, en este caso se juega, además, con las formas redondeadas para aportar un toque orgánico que, además, ayuda a conectar estancias.

Foto: Didier Delmas.
Imagen - Foto: Didier Delmas.

5. Estética vintage

El estudio de Thibaut Picard busca transportarnos al París de postal de un antiguo bistró y, para conseguirlo, no duda en apostar por piezas de estética retro por todo el apartamento: del gran espejo envejecido de la cocina a un antiguo piano, los apliques del baño incrustados en sus paredes de hormigón encerado, su bañera alcoba o las sillas de estilo vintage en cuero envejecido.

HORÓSCOPO

HORÓSCOPO

Sagitario

Como signo de Fuego, los Sagitario son honestos, optimistas, ingeniosos, independientes y muy avetureros. Disfrutan al máximo de los viajes y de la vida al aire libre. Son deportistas por naturaleza y no les falla nunca la energía. Aunque a veces llevan su autonomía demasiado lejos y acaban resultando incosistentes, incrontrolables y un poco egoístas.